Innovative non-combustible cast stone fireplace mantel. Wherever you may live in New York, Los Angeles, San Francisco, Pittsburgh, Philadelphia, Paramus, Newton, Boston, Houston, Chicago,  Long Island City, Montreal, Ottawa, Toronto, Calgary, Vancouver, Edmonton rest assured that we can satisfy your needs for your fireplace, your kitchen hood, living room and any important piece of your house with stone fireplace mantels, stone mantles, kitchen range hoods, manufactured stone veneer and natural stone veneer
« Back to Stone fireplace mantels
TUSCAN Cast stone fireplace mantel

TUSCAN & 1106.536 Mantel

For a truly dramatic fireplace, overmantels can be placed above the mantel to add visual interest and height. Precision and intricate detailing make our overmantels master pieces. Most overmantels can be custom made with a niche to accommodate a flat screen tv.
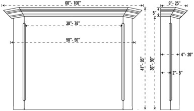
TUSCAN stone fireplace mantel spec sheet
Color & Finish Options
Buff Open Cast Limestone Open Cast Natural Open Cast Gray Open Cast Chocolate Diamond Stone Sahara Diamond Stone
Buff Open Cast Limestone Open Cast Natural Open Cast Gray Open Cast Chocolate Diamond Sahara Diamond
Ash Diamond Stone Pearl Diamond Stone Gray Honed Stone Chocolate Honed Stone Ash Honed Stone Ash Veined Honed Stone
Ash Diamond Pearl Diamond Gray Honed Chocolate Honed Ash Honed Ash Veined Honed
Sahara Honed Stone Sahara Veined Honed Stone Pearl Honed Stone Pearl Veined Honed Stone    
Sahara Honed Sahara Veined Honed Pearl Honed Pearl Veined Honed